REF : 1388-1-1

Caractéristiques

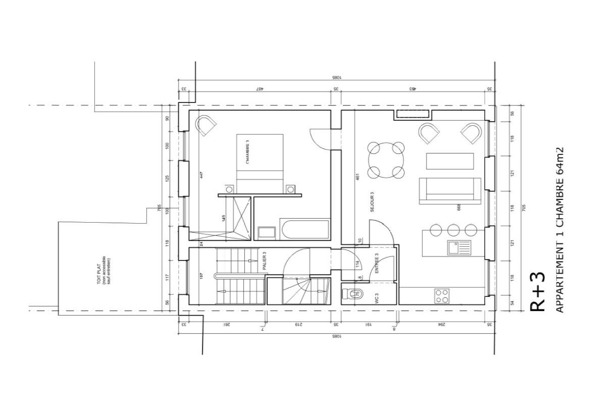
Type

Appartement

Surface hab.

66 m²

Chambre(s)

1

Salle(s) de bains

1

3ème étage

  • Chambre(s): 20 m²
  • Cuisine US équipée
  • Dressing
  • Hall d'entrée avec wc séparé
  • Salle de bains
  • Séjour: 30 m² plancher

Sous Sol

  • Cave

Pièces diverses

  • Cave
  • WC

Equipements de Cuisine

  • Congélateur
  • Hotte aspirante
  • Lave vaisselle
  • Four
  • Cuisinière au gaz
  • Frigo
  • Meubles de cuisine

Equipements Electrique

  • Thermostat
  • Interphone
  • Câble TV

Certifications

  • Installation électrique conforme
  • Prestation énergétique: 146 Kwh
  • Total énergie primaire: 9 kwh/an
  • Emissions CO2: 29 Kg Co2m²an
  • Numéro de certificat PEB C-

Equipements divers

  • Double vitrage
  • Porte blindée

Fenêtres

  • PVC

Sol

  • Plancher

Revêtement mural

  • Peinture

Diagnostic de Performance énergétique

PEB

Consommation énergétique :

146 kWhEP/m²/an