REF : 1388-1-1-1-1

Caractéristiques

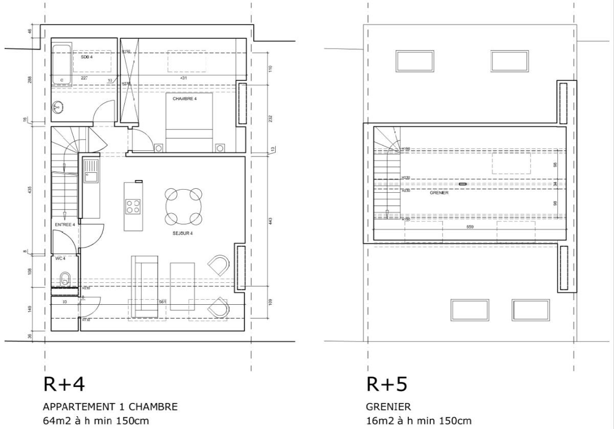
Type

Duplex

Surface hab.

71 m²

Chambre(s)

2

Salle(s) de bains

1

4ème étage

  • Chambre(s): 15 m²
  • Cuisine
  • Hall d'entrée
  • Salle de bains
  • Séjour: 30 m²

Grenier

  • Chambre(s): 13 m² ou bureau

Sous Sol

  • Cave

Pièces diverses

  • Cave
  • WC

Equipements de Cuisine

  • Cuisinière au gaz
  • Four
  • Congélateur
  • Frigo
  • Meubles de cuisine
  • Lave vaisselle
  • Hotte aspirante

Equipements Electrique

  • Thermostat
  • Câble TV
  • Interphone

Certifications

  • Installation électrique conforme
  • Prestation énergétique: 261 Kwh
  • Total énergie primaire: 18 kwh/an
  • Emissions CO2: 53 Kg Co2m²an
  • Numéro de certificat PEB E

Equipements divers

  • Double vitrage
  • Porte blindée

Fenêtres

  • PVC

Sol

  • Plancher

Revêtement mural

  • Peinture

Diagnostic de Performance énergétique

PEB

Consommation énergétique :

261 kWhEP/m²/an